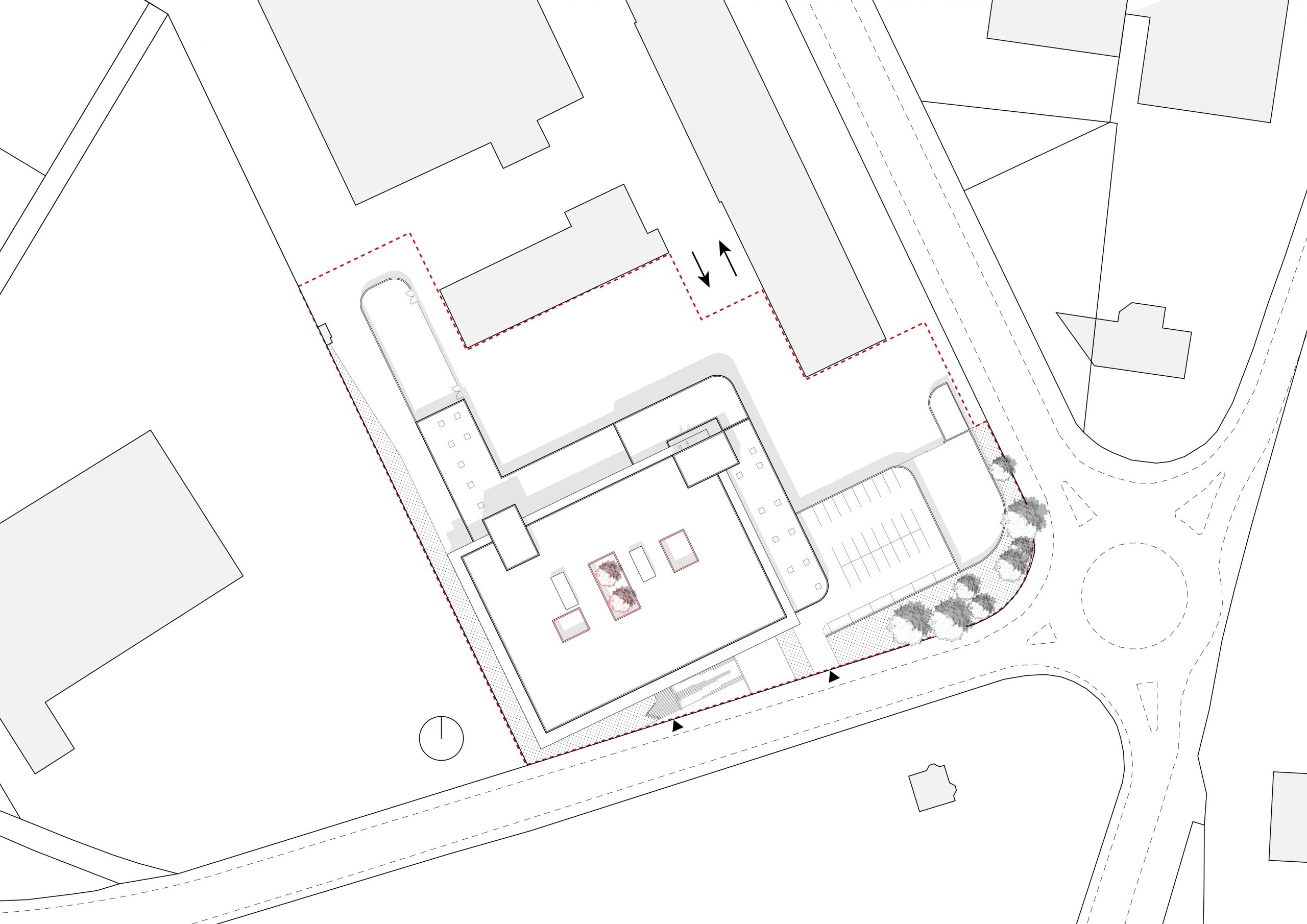
localisation
programme : construction du bâtiment des services de l’eau et des déchets de l’agglomération d’annecy, zi de vovray à annecy – haute-savoie
maîtrise d’ouvrage : C2A – Communauté de l’Agglomération d’Annecy
maîtrise d’oeuvre : pateyarchitectes (architecte/économiste), plantier (be structure), cet (be fluides), viatec altus (be vrd)
mission : base + exe
surface hors oeuvre nette : 3 500 m²
coût de travaux : 10 500 000 € H.T.
calendrier : projet lauréat, pc 2017 , livraison 2020
©images : pateyarchitectes | ©photos 3,5,13,14 : studio erick saillet | ©photos : Béatrice Cafieri





















